


ゆとりある広さで迎える玄関土間
収納を兼ね揃えたファミリーエントランス
効率的に料理を配膳できる動線計画
脱ぐ→洗う→干すが完結できる機能的なランドリー


●スタイリッシュな外観は住む人を飽きさせないデザイン
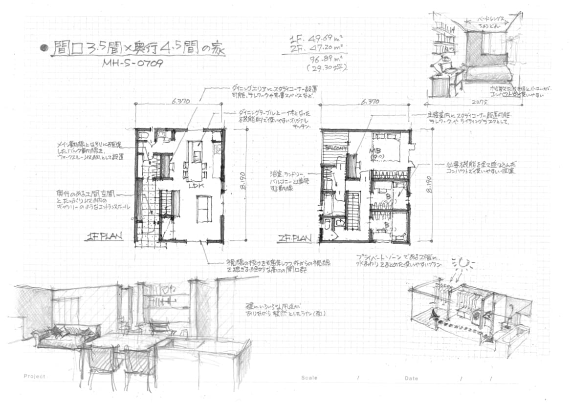
●最低敷地間口7.5Mで建築可能
(外壁面から隣地境界線まで50㌢の場合)
●玄関→収納→洗面へと続く機能的な動線計画
●ウイルス防止対策として帰宅後直ぐの手洗い動線


●在宅勤務にも対応可能なワークスペースを完備
●効率的な作業動線で、家事の負担を低減
●収納豊富なクローゼットを備えた優雅なベッドルーム
●お子様の成長に合わせた間取りに対応
